安詩曼電器
手機:133-6050-3273
微信:133-6050-3273
地址:廣東深圳坪山區青松西路8號鴻合科技園

隨著近期的強降雨天氣,家里到處都是濕漉漉的,衣服潮濕、墻面發霉、家具損壞,家里到處都受到潮濕的危害。怎樣可以讓房間以最快的速度變得干燥舒適呢?很多人就想到買個除濕機回來。除濕機放在家里不僅可以除濕,還可以預防電路短路的問題,特別是在天氣不定的時候,都是會造成電路短路的現象,在梅雨季節,整個電線都是處...
了解詳情
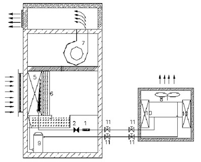
除濕機工作原理:由進風扇將潮濕空氣抽入機內,經過制冷系統(壓縮機,蒸發器,冷凝器)相互作用下凝結成霜,系統自動升溫化霜成水流入是盛水箱,產生出干燥空氣排出,如此循環使室內濕度降低,潮濕空間逐步達到干爽的效果。一、除濕機的內循環:通過壓縮機的運行→排
了解詳情
除濕機是每個家庭必備的生活電器,尤其是在炎熱的夏季,帶啊都離不開除濕機了,所以除濕機在大家日常生活中使用的還是挺頻繁的,然而除濕機在使用的過程中也會有一些故障也會產生,例如除濕機結冰現象,那么除濕機結冰是什么原因呢,下面就一起來看看除濕機結冰的原因有哪些。大家一起隨小編來看看吧!除濕機結冰是什么原因...
了解詳情
如今,普通常規除濕機在工業領域已經得到了廣泛的應用。而非標除濕機,“非標”顧名思義就是不按標準生產的除濕機,也就是因現場情況比較復雜、要求比較高,常規除濕機無法達到要求,所以采用非標除濕機需根據現場工況,濕
了解詳情
種子的重要性是毋庸置疑的,沒有種子,農業就無法進行,我們就只能吃草。種子在儲存前需要干燥,記得當小的時候,不管是垃圾還是茄子等農作物的種子都是在陽光下曬干,然后儲存在玻璃瓶里,第二年來種植。當然,這種方法只能在家里使用,如果數量很大,仍然需要烘干,畢竟,自然干燥會受到天氣的影響,一旦下雨,就不能進行...
了解詳情
奶粉保存不能一“蓋”了之,三大步驟來“保鮮”!1、常溫、陰涼我們將常溫和陰涼放在一起,是因為常溫指的是日常的適宜溫度,一般在25℃左右,奶粉未開封前只需放在家里陰涼通風處,避免陽光直射就可以了,溫度太高易使奶粉中的部分營養成分,比如維生素、免疫球蛋白等失活;同時
了解詳情
調溫型除濕機適合高溫環境中使用,在一些溫度變化比較大,溫度比較高的場合下,使用調溫型除濕機的話,對于降低環境內溫度和濕度會有比較顯著和良好的效果,給我們的生產和工作帶來的極大的方便。調溫型除濕機的濕裝置由除濕蛋和承座組成。所謂除濕蛋,就是一種多孔的,透氣較好的的陶瓷外殼,除濕蛋的里面是一個容器,里面...
了解詳情
核心提示:其實,選擇適合自己的除濕機并不是很難。可以看看在前面更新的一些文章,《除濕機什么牌子好?除濕機選購有講究》,《教你如何選購除濕機,看完就能選對除濕機》。關于除濕機的選購技巧,里面都做了詳盡的說明,這里不再重復。這篇文章我的主要
了解詳情
家用除濕機是由壓縮機、熱交換器、風扇、盛水器、機殼及控制器組成,其抽濕的原理是冷凝,根據“水蒸氣遇冷會從凝結成液態水”這一原理發明。除濕機里的壓縮機把冷凝片的溫度降低,除濕機內部風扇將潮濕的空氣抽入到機器中,空氣中的水分通過熱交
了解詳情
除濕機風機靜壓、動壓、全壓、余壓的概念a.靜壓(Pi)由于空氣分子不規則運動而撞擊于管壁上產生的壓力稱為靜壓。計算時,以絕對真空為計算零點的靜壓稱為絕對靜壓。以大氣壓力為零點的靜壓稱為相對靜壓。空調中的空氣靜壓均指相
了解詳情
一、加濕器和香薰機區別對比1.概念(1)香薰機是利用香氛的獨特魅力,使交流由視覺,聽覺延伸至嗅覺,到達更深層次,用香氛優化環境,讓顧客充沛感受到交心的溫暖服務添加顧客的好感和滿意度的資本。適用于家庭,酒店客房,大堂,過道,客房等各個場所。(2)加濕器是一種添加房間濕度的家用電器。加濕器能夠給指定房間...
了解詳情
而在歐洲,法國最早是在上個世紀70年代初引進新風系統,2000年歐盟統一住宅通風標準,并且當時歐洲的新風系統累計銷量已經超過1億臺。97.81%的室內環境已經安裝新風系統。無論是辦公室,還是學校、酒吧,安裝具有置換空氣功能的新風系統已經成為一種標配。今天:中國市場剛起步在中國,新風系統
了解詳情
大家對于膠囊肯定都不陌生,因為每當我們生病的時候醫生給我們開的藥里大部分都有膠囊類的藥品。膠囊其主要的成分就是可食用明膠,應該會有細心的人發現,當膠囊處于空氣中的時候會很容易受潮導致藥效失效無法食用。這就說明膠囊類的藥品不能受潮,所以在生產的時候肯定要做好防潮除濕的預防,盡可能的減少藥品出現受潮的可...
了解詳情
在空氣潮濕,室內潮濕之時,在房間之中放一臺除濕機是一個不錯的選擇,除濕機就是將潮濕水汽處理為干燥空氣的機器,但是除濕機選擇一定要根據房間的大小,選則除濕量適合自己家庭的產品。除濕器又名除濕機,抽濕機,抽濕器。除
了解詳情
這段陰雨天過后就是清明時節雨紛紛,然后就是梅雨季了!說實話,最近浙江的天氣真的太難受了。自己每天上下班濕鞋子不說,就算不下雨也陰沉沉,自己的衣服總感覺永遠不會干。而慢慢君最近正好了解到一款小眾的產品,那就是恰好要跟冬天用的“加濕器”唱反調的一款產品,家用除濕機
了解詳情
東麗株式會社重視推進在中國的研究開發工作。2002年在江蘇省南通市率先創建了外資企業中最最的纖維研究所即東麗纖維研究所(中國)有限公司(簡稱:TFRC)。今年則將研究范圍擴展到高分子材料各相關領域為目的,在上海市閔行區的紫竹科學區設立了上海分公
了解詳情
首先你要知道除出來的水是哪里來的。是空氣,其實我們身邊的空氣里都會含有水分。我們用“濕度值”來判斷空氣水分的多少,當濕度太大了,細菌就容易生長,東西容易發霉,人也會感到氣悶、容易生病。那除濕機是如何吸收掉空氣里不受歡迎的水分呢?簡單來說,除濕機有2套系統。一套用來循環空氣,吸收潮濕空氣,
了解詳情
熔模鑄造是一種工業過程,是已知A古老的金屬成形技術之一。在早期,當蜂蠟形成模式,到今天的高科技蠟,耐火材料和專業合金時,鑄件允許在各種金屬和高性能合金中生產具有準確性,重復性,通用性和完整性的部件。熔模鑄造工藝使用大多數金屬,最常用的是鋁合金,青銅合金,鎂合金,鑄鐵,不銹鋼和
了解詳情
除濕機廠家一般情況下都兼任著其他的家用電器的,一個使用和發明或者生產設計等等都是屬于這些廠家的一項非常重要的責任,誰能夠為我們提供更好的商品,誰就能夠在眾多廠家當中脫穎而出,成為我們一個非常重要的部分,這一點是顯而易見的,所以在眾多廠
了解詳情
提起除濕機,很多人不陌生,雨季時通常都會使用除濕機進行除濕。然而大多數人僅僅是停留在使用的層面上,對除濕機的工作原理卻不太知曉的,其實除濕機的原理非常簡單,這里杭州除濕機廠家就來為大家介紹一下。不論是哪一種電器產品,它
了解詳情